Charmante DG-Wohnung mit Spitzboden und Garage – ideal zur Eigennutzung oder Kapitalanlage

58453 Witten, Dachgeschosswohnung zum Kauf

Kontaktdaten

Objektdaten

  • Objekt ID
    DEW-2026-520
  • Objekttypen
    Dachgeschosswohnung, Wohnung
  • Adresse
    In der Mark 58
    58453 Witten
  • Etage
    2
  • Wohnfläche ca.
    80 m²
  • Zimmer
    3
  • Schlafzimmer
    2
  • Badezimmer
    1
  • Heizungsart
    Zentralheizung
  • Baujahr
    1993
  • Zustand
    gepflegt
  • Ausstattung
    gehoben
  • Verfügbar ab
    nach Absprache
  • Stellplätze gesamt
    1
  • Käufer­provision
    4,76 inkl. MwSt.
  • Kaufpreis
    159.000 EUR

Ausstattung / Merkmale

  • Einbauküche
  • Garage
  • Gäste-WC
  • Keller

Energieausweis

  • Energieausweistyp
    Verbrauchs­ausweis
  • Ausstellungsdatum
    ab dem 1.5.2014
  • Baujahr
    1993
  • Primärenergieträger
    Gas
  • Endenergie­verbrauch
    69,70 kWh/(m²·a)
  • Energie­effizienz­klasse
    B

Objekt­beschreibung

Beschreibung

Die angebotene Wohnung befindet sich im Dachgeschoss eines gepflegten Mehrfamilienhauses aus dem Baujahr 1993 und ist ausschließlich über das Treppenhaus erreichbar. Sie überzeugt durch eine gut durchdachte Raumaufteilung sowie ein attraktives Nutzungspotenzial – sowohl für Eigennutzer als auch für Kapitalanleger.

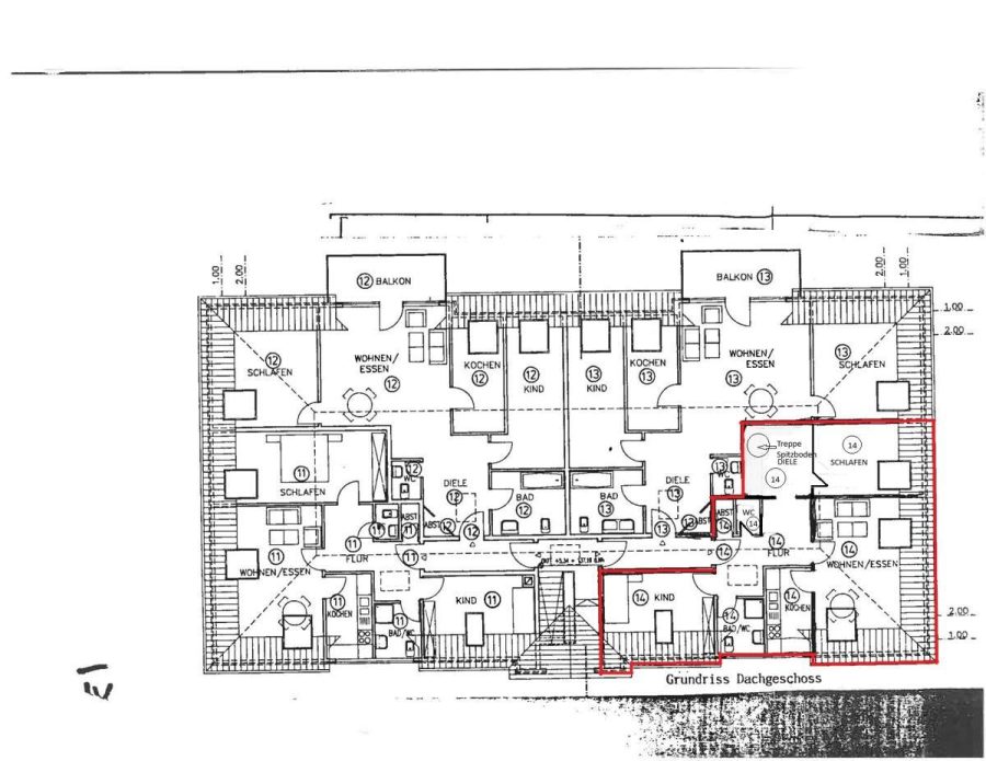
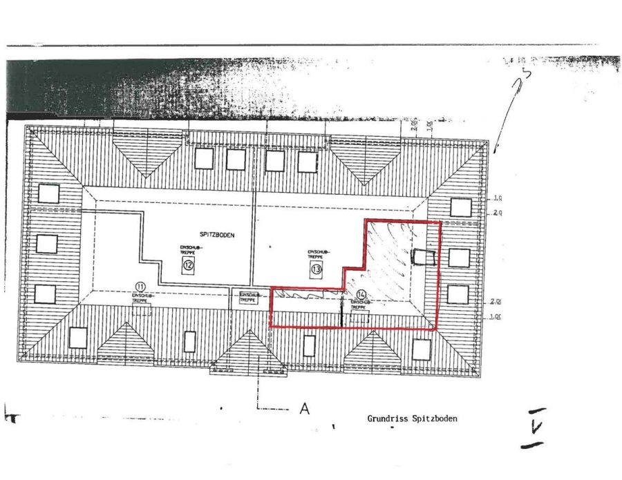
Die Wohnfläche verteilt sich auf eine Diele, ein großzügiges Wohnzimmer, ein Schlafzimmer, ein Kinderzimmer, eine Küche inklusive Einbauküche, ein modernisiertes Badezimmer sowie ein separates Gäste-WC. Das Badezimmer präsentiert sich in einem zeitgemäßen und ansprechenden Stil mit modernen Fliesen und Glasduschwänden. Ergänzt wird das Raumangebot durch eine praktische Abstellkammer sowie den Aufgang in den Spitzboden, der zusätzliche Nutzfläche bietet.

In der Wohnung sind weiße Fliesenböden verlegt, die für ein helles und pflegeleichtes Wohnambiente sorgen. Die Einheit ist bereits freigezogen und steht dem Erwerber somit kurzfristig zur Eigennutzung oder Neuvermietung zur Verfügung.

Die monatlichen Vorauszahlungen belaufen sich derzeit auf insgesamt 301,00 € und setzen sich aus 216,00 € Hausgeld sowie 85,00 € Instandhaltungsrücklage zusammen.

Auch technisch wurden bereits einzelne Maßnahmen umgesetzt: Die Buderus-Heizungsanlage stammt aus dem Jahr 2013, zudem wurde im Jahr 2022 eine neue Haustüranlage installiert. Dach, Fassade und Elektrik entsprechen dem baujahrtypischen Standard.

Zum Sondereigentum gehören eine im Haus befindliche Garage sowie ein eigener Kellerraum. Eine gemeinschaftlich nutzbare Waschküche steht den Bewohnern ebenfalls zur Verfügung.

Lage

Die angebotene Immobilie befindet sich in einer ruhigen und beliebten Wohnsiedlung in Witten-Annen. Die Umgebung zeichnet sich durch eine familienfreundliche Infrastruktur aus, die besonders für junge Familien attraktiv ist. Ein Kinderspielplatz ist direkt in der Nähe. Schulen und Kindergärten sind ebenfalls bequem zu Fuß erreichbar. Die Lage vereint somit eine angenehme Wohnatmosphäre mit einer hervorragenden Anbindung an wichtige Einrichtungen des täglichen Bedarfs.

Direktanfrage

 SSL-verschlüsselt
Darstellung der Immobilien mit WP-ImmoMakler und Daten aus