Exklusives Mehrfamilienhaus mit 4 Wohneinheiten im Westen von Münster

48163 Münster, Mehrfamilienhaus zum Kauf

Kontaktdaten

Objektdaten

  • Objekt ID
    DEW-2026-491
  • Objekttypen
    Haus, Mehrfamilienhaus
  • Adresse
    Sendenweg 16
    48163 Münster
  • Wohnfläche ca.
    384,25 m²
  • Grund­stück ca.
    628 m²
  • Zimmer
    16
  • Schlafzimmer
    12
  • Badezimmer
    6
  • Baujahr
    2015
  • Zustand
    neuwertig
  • Ausstattung
    gehoben
  • Verfügbar ab
    nach Absprache
  • Stellplätze gesamt
    4
  • Käufer­provision
    4,76 inkl. MwSt.
  • Kaufpreis
    1.700.000 EUR

Ausstattung / Merkmale

  • Außenstellplatz
  • Gäste-WC
  • Keller

Energieausweis

  • Energieausweistyp
    Bedarfs­ausweis
  • Ausstellungsdatum
    ab dem 1.5.2014
  • Baujahr
    2015
  • Primärenergieträger
    Erdwärme
  • Endenergie­bedarf
    13,00 kWh/(m²·a)
  • Energie­effizienz­klasse
    A+

Objekt­beschreibung

Beschreibung

Dieses gepflegte und attraktive Mehrfamilienhaus befindet sich in der beliebten und ruhigen Lage von Münster-Düesberg. Das im Jahr 2015 erbaute Haus bietet auf drei Etagen insgesamt vier moderne, gut geschnittene Wohneinheiten, die alle derzeit vermietet sind und eine stabile Einnahmequelle bieten.

Die Wohnungen sind großzügig und lichtdurchflutet gestaltet, mit zeitgemäßen Ausstattungsmerkmalen, die höchsten Komfort bieten. Jede Einheit verfügt über eine offene, gut durchdachte Raumaufteilung und hochwertige Materialien. Das Haus wurde mit Blick auf Energieeffizienz und Nachhaltigkeit errichtet und erfüllt alle Anforderungen der modernen Bauweise.

Hinweise zu den Wohneinheiten:
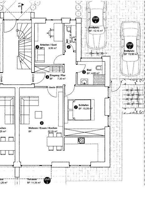
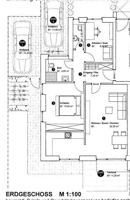
Wohnung 1 - EG rechts (ca. 76 m²)
Wohnung 2 - EG links (ca. 76 m²)
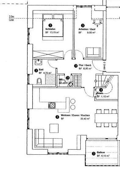
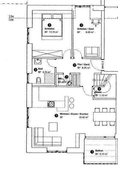
Wohnung 3 - OG rechts (ca. 116 m²)
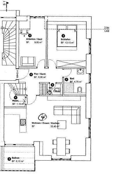
Wohnung 4 - OG links (ca. 116 m²)

Jährliche Mieteinnahmen Gesamt: 50.760,- €

Ausstattung

- Moderne Heiztechnik: Wärmepumpe inklusive Warmwasserspeicher und Fußbodenheizung in allen Einheiten

Bodenbeläge: Hochwertige Fliesen und Parkettböden

Bäder: Tageslichtbäder mit modernen Sanitäranlagen, zzgl. Gäste-WC

Fenster: Dreifach- Isolierverglasung als Wärmeschutzverglasung, Fenster im EG verfügen über einbruchhemmende WK 2 Beschläge, Kunststoffrollläden in Hellgrau mit Wärmegedämmten Fertigrollladenkästen (außer Dachflächenfenster)

Hauseingang Erdgeschoss: Türanlage mit Verbundsicherheitsglas und Mehrfachverriegelung, Videosprechanlage mit elektrischem Türöffner, freistehende Briefkästen- und Klingelanlage, Hauseingangsbeleuchtung mit Bewegungsmelder

Terrassen / Balkone: Beläge der Terrassen aus Betonwerksteinplatten, Balkone mit Belag aus Keramikplatten, Balkongeländer mit Edelstahlhandlauf und satiniertem Sicherheitsglas

Sonstige Informationen

Dieses Mehrfamilienhaus in Münster-Düesberg stellt eine hervorragende Gelegenheit für Investoren dar, die auf der Suche nach einer stabilen und zukunftssicheren Kapitalanlage sind. Die Lage, die moderne Ausstattung und die voll vermieteten Wohneinheiten garantieren eine langfristige und sichere Einkommensquelle.

Bitte senden Sie uns ausschließlich schriftliche und aussagekräftige Kontaktanfragen per Mail.

Lage

Münster-Düesberg ist ein begehrter Stadtteil, der durch seine hervorragende Anbindung an das öffentliche Verkehrsnetz und die Nähe zur Innenstadt besticht. Hier genießen die Bewohner die Ruhe und den Charme eines gewachsenen Stadtteils, während die vielfältigen Annehmlichkeiten der Stadt schnell erreichbar sind. Supermärkte, Schulen und Freizeitmöglichkeiten befinden sich in unmittelbarer Nähe, was die Lage besonders attraktiv für Mieter macht.

Direktanfrage

 SSL-verschlüsselt
Darstellung der Immobilien mit WP-ImmoMakler und Daten aus