Wohnen im ehemaligen Jagdhaus in Ennepetal

58256 Ennepetal, Einfamilienhaus zur Miete

Kontaktdaten

Objektdaten

  • Objekt ID
    DEW-2025-445
  • Objekttypen
    Einfamilienhaus, Haus
  • Adresse
    Breckerfelder Str. 68
    58256 Ennepetal
  • Etagen im Haus
    2
  • Wohnfläche ca.
    142 m²
  • Grund­stück ca.
    1.500 m²
  • Zimmer
    3,5
  • Schlafzimmer
    2
  • Badezimmer
    1
  • Heizungsart
    Zentralheizung
  • Baujahr
    2000
  • Zustand
    modernisiert
  • Ausstattung
    gehoben
  • Verfügbar ab
    01.01.2026
  • Stellplatz
    Stellplatzmiete: 50 EUR (Anzahl: 2)
  • Kaution
    4800,00
  • Kaltmiete
    1.600,00 EUR
  • Heizkosten
    200,00 EUR (in der Warmmiete enthalten)
  • Nebenkosten
    400,00 EUR
  • Warmmiete
    2.050,00 EUR (Heizkosten enthalten)

Ausstattung / Merkmale

  • Einbauküche
  • Gäste-WC
  • Haustiere erlaubt

Energieausweis

  • Energieausweistyp
    Verbrauchs­ausweis
  • Ausstellungsdatum
    ab dem 1.5.2014
  • Baujahr
    2000
  • Primärenergieträger
    Gas
  • Endenergie­verbrauch
    72,00 kWh/(m²·a)
  • Energie­effizienz­klasse
    B

Objekt­beschreibung

Beschreibung

Sie suchen ein außergewöhnliches Miethaus für sich und ihre kleine Familie? Dann ziehen Sie doch einfach in ein ehemaliges Jagdhaus, welches über einen offenen Kamin, hohe Decken mit offenen Balken im Dachgeschoss, Steinböden und alte Gemäuer verfügt.

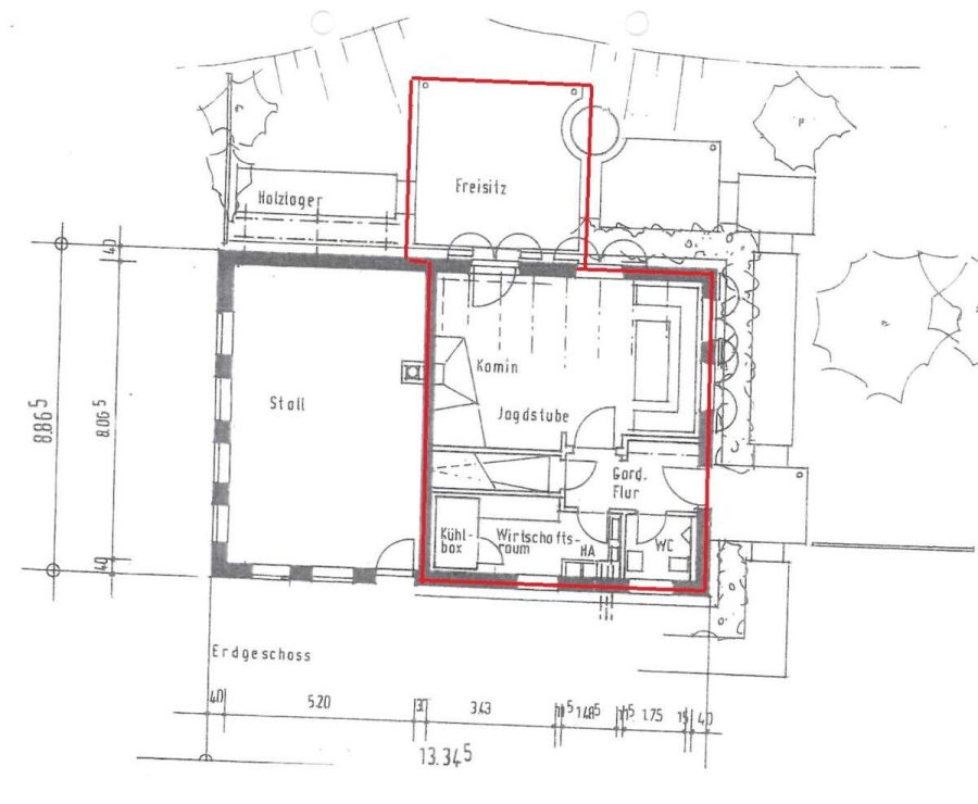
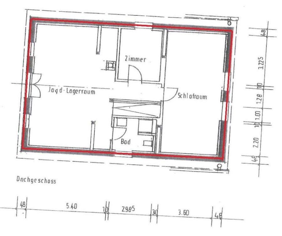
Das freistehende, nicht unterkellerte Einfamilienhaus ist wie folgt aufgeteilt:

Erdgeschoss: Diele, kleine Küche mit Kühlkammer, Gäste-WC, einem ca. 30 m² großen Essraum mit offenen Kamin und Ausgang auf die Terrasse

Obergeschoss: ein ca. 43 m² großes Wohnzimmer, 1 Kinderzimmer, 1 ca. 28m² großes Schlafzimmer und 1 Badezimmer mit Dusche und Fenster

Das Haus wurde in den letzten Jahren aufwendig saniert.

Im Haus befindet sich noch ein Schlachthaus, welches an Jäger vermietet und noch in Betrieb ist.

Auf dem Grundstück befinden sich 2 Wohnhäuser und diverse Nebengebäude. Bei Besichtigung erhalten Sie Einblick auf die zu nutzende Fläche.

Lage

Das Haus liegt in 2. Reihe an der Breckerfelder Straße in Ennepetal ist teilweise von Wiesen umgeben.

Die Haltung von Haustieren ist nach Absprache möglich.

Bitte senden Sie uns ausschließlich eine schriftliche Kontaktanfrage per Mail.

Direktanfrage

 SSL-verschlüsselt
Darstellung der Immobilien mit WP-ImmoMakler und Daten aus